Available SIL home, Maryborough QLD 4650

Back to all listings
3
3
225 m2
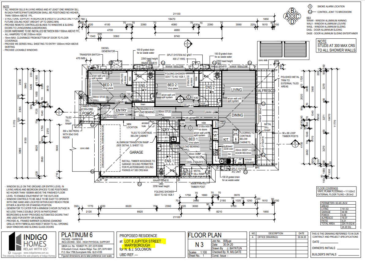
This purpose-built Specialist Disability Accommodation (SDA) home offers premium High Physical Support living in Maryborough, QLD. Designed by Indigo Homes, the Platinum 6 Harbour facade home has 1 room currently available within a 3 bedroom, 3 ensuite shared home.

The home features open plan kitchen, living and dining areas, a covered alfresco and patio, plus a garage. Thoughtfully designed to AS 1428.1 accessibility standards, the home includes folding shower seats, aluminium transition ramps, split system air conditioning throughout, and a diesel generator with transfer switch for uninterrupted power supply.

Enquire about a vacancy at:
Available SIL home, Maryborough QLD 4650

Fill in the form below to express interest in one of our vacant Supported Independent Living homes.

Subscribe to our newsletter

Just Better Care acknowledges the Traditional Custodians of country throughout Australia and their connections to land, sea and community. We pay our respect to their Elders past and present and extend that respect to all Aboriginal and Torres Strait Islander peoples today. We also acknowledge the diversity of Australian culture and extend our support to all individuals, regardless of culture or sexuality.

How can we help?